W 2021 r. do jednostek OSP w całej Polsce trafi 314 samochodów ratowniczo-gaśniczych o łącznej wartości ok. 244 mln zł.
Zakupy samochodów zostaną zrealizowane przez jednostki OSP przy dofinansowaniu:
• NFOŚiGW / WFOŚiGW – 60,7 mln zł,
• dotacji KSRG – 44,9 mln zł,
• dotacji MSWiA – 19,6 mln zł,
• środków pochodzących z odpisów z firm ubezpieczeniowych – 14,5 mln zł.
W naszym dotacja na zakup samochodów otrzymały jednostki:
- Ochotnicza Straż Pożarna w Mucharzu na zakup Średniego Samochodu Ratowniczo Gaśniczego,
- Ochotnicza Straż Pożarna w Przytkowicach na zakup Ciężkiego samochodu Ratowniczo Gaśniczego.
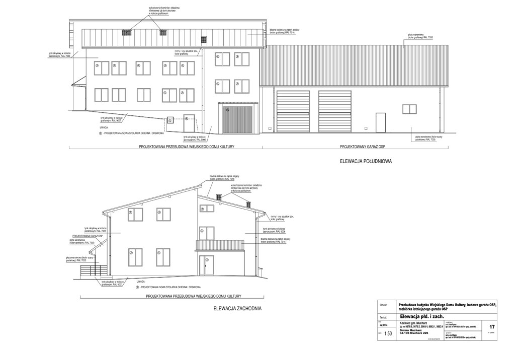
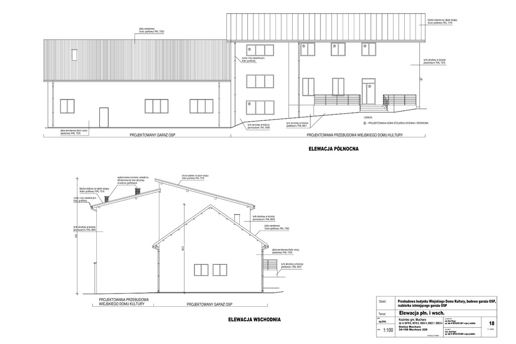
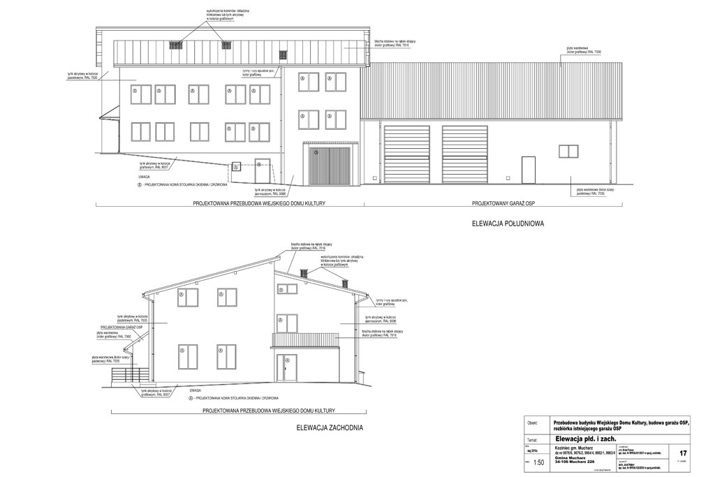
W ramach Rządowego Funduszu Inwestycji Lokalnych w miejscowości Koziniec gmina Mucharz powstanie nowa remiza dla druhów Ochotniczej Straży Pożarnej Koziniec-Centrum o łącznej pow. zabudowy 215,60 m², pow. użytkowa 199,52 m², kubatura 1.430,00 m³ – dwa stanowiska garażowe z częścią socjalno-magazynową. Konstrukcja stalowa z wypełnieniem ścian zewnętrznych płytą wielowarstwową.
Szacowany koszt inwestycji to 900.000 zł
Dofinansowanie – 700.000 zł





